Главная
О Нас
Кейсы
Услуги
Цены
Контакты
Отзывы
Инвестобъект SS09
Г. Дубна, МО, ЖК «Феникс»
Год реализации: 2025
Срок реализации: 3 месяца
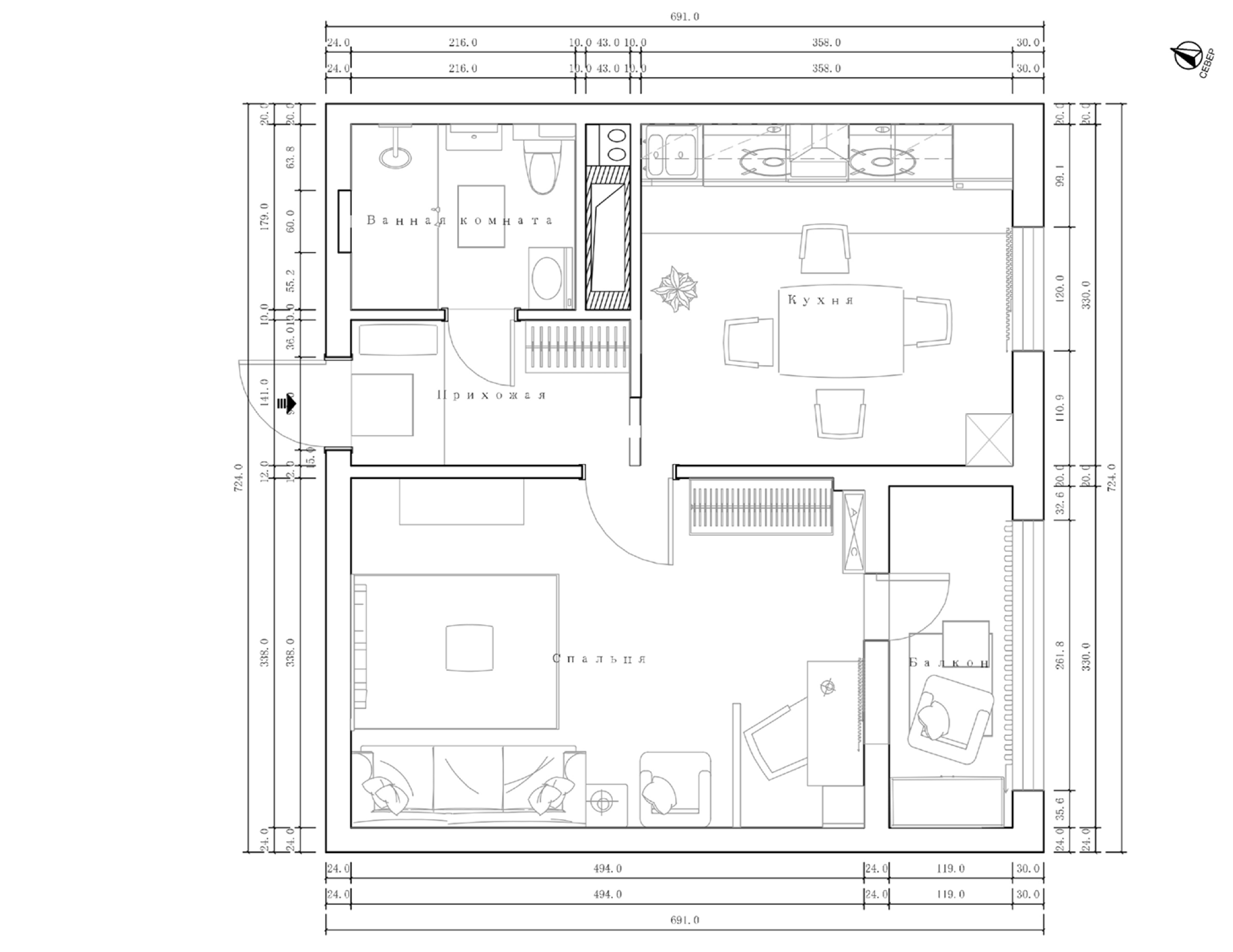
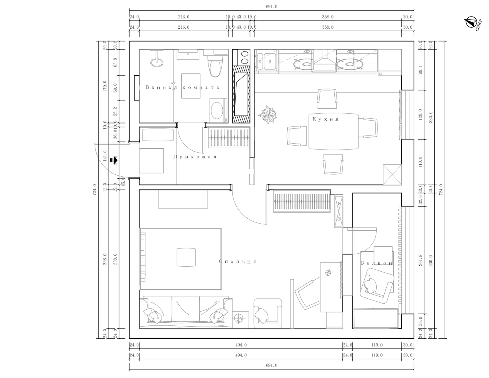
Площадь (общая): 40,5 м²
Виды работ: дизайн-проект, капсульный ремонт, авторский надзор, комплектация
Объект выполнен по заказу инвестора
Экстерьеры ЖК
Экстерьеры ЖК
Экстерьеры ЖК
Экстерьеры ЖК
Экстерьеры ЖК
Экстерьеры ЖК
Объект до начала работ
Объект до начала работ
Объект до начала работ
Расстановка
Визуализация прихожей
Визуализация балкона
Визуализация сан-узла
Визуализация кухни
Визуализация комнаты
Визуализация комнаты
Готовый объект
Готовый объект
Готовый объект
Готовый объект
Готовый объект
Готовый объект
Готовый объект
Готовый объект
Готовый объект
Готовый объект
Готовый объект
Готовый объект
Готовый объект
Кейсы
Инвестобъект SS08
Г. Дубна, МО, ЖК «Феникс»
Инвестобъект SS07
Г. Дубна, МО, ЖК «Феникс»
Флипобъект SS06
Г. Дубна, МО, ЖК «ПРОГРАММИСТОВ»
Арендный объект SS05
Г. Дубна, МО, Апартаменты на Дачной
Флипобъект SS04
Г. Дубна, МО, ЖК на Университетской
Флипобъект SS03
Г. Дубна, МО, ЖК на Вернова 5
Флипобъект SS02
Г. Дубна, МО, ЖК на Вернова 5
Флипобъект SS01
Г. Дубна, МО, ЖК «Фрегат»
Инвестобъект SS10
Инвестобъект ss10
RU
EN
На сайте используются файлы cookie. Продолжая просмотр сайта, вы разрешаете их использование.
Политика конфиденциальности
Понятно