Главная
О Нас
Кейсы
Услуги
Цены
Контакты
Отзывы
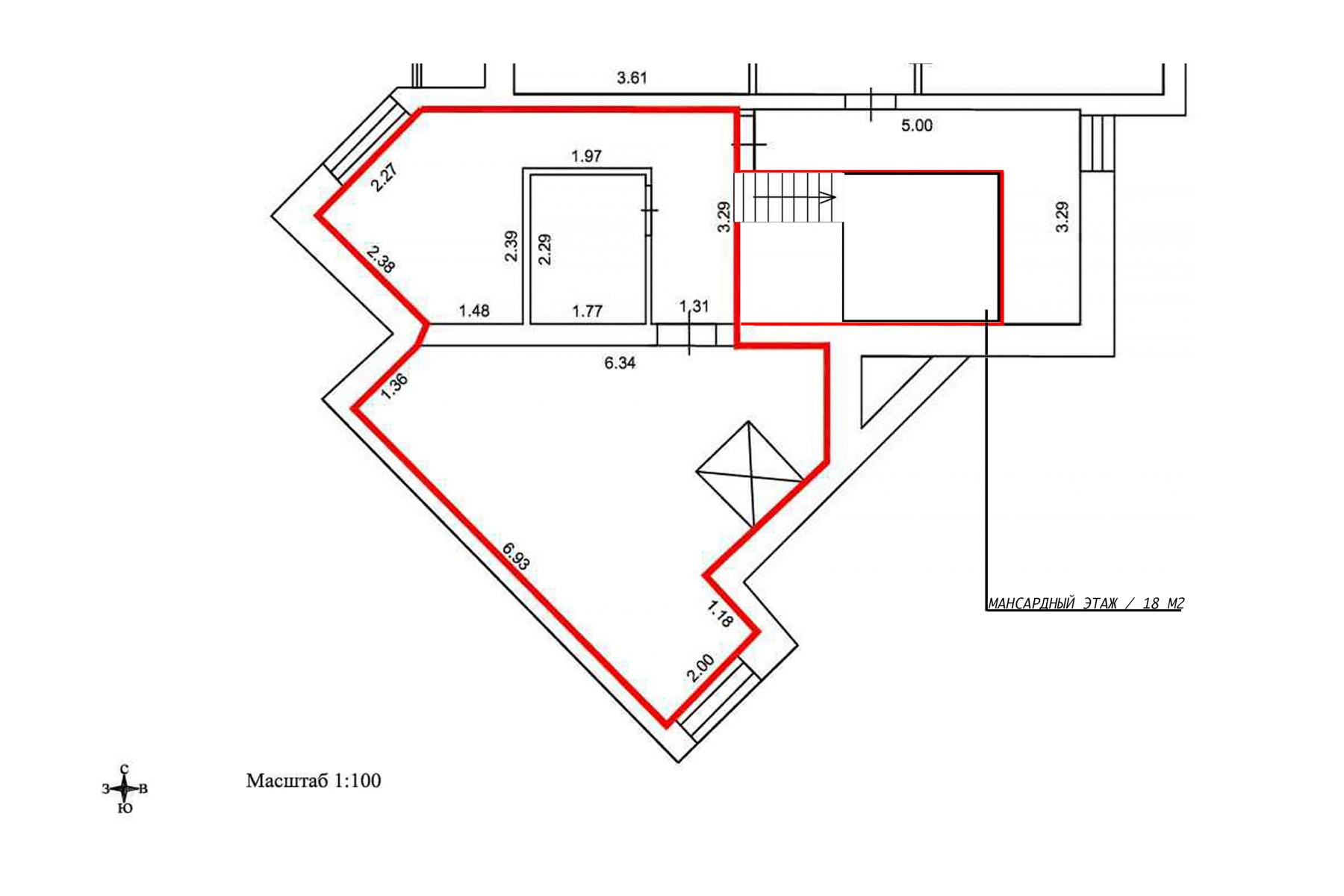
Флипобъект SS04
Г. Дубна, МО, ЖК на Университетской
Год реализации: 2022
Срок реализации: 3 месяца
Площадь (общая): 48 м²
Виды работ: дизайн-проект, капсульный ремонт, авторский надзор, комплектация
Объект выполнен под флиппинг
Экстерьеры ЖК
Расстановка
Готовый объект
Готовый объект
Готовый объект
Готовый объект
Готовый объект
Готовый объект
Готовый объект
Готовый объект
Готовый объект
Кейсы
Флипобъект SS03
Г. Дубна, МО, ЖК на Вернова 5
Флипобъект SS02
Г. Дубна, МО, ЖК на Вернова 5
Флипобъект SS01
Г. Дубна, МО, ЖК «Фрегат»
Инвестобъект SS10
Инвестобъект ss10
Инвестобъект SS09
Г. Дубна, МО, ЖК «Феникс»
Инвестобъект SS08
Г. Дубна, МО, ЖК «Феникс»
Инвестобъект SS07
Г. Дубна, МО, ЖК «Феникс»
Флипобъект SS06
Г. Дубна, МО, ЖК «ПРОГРАММИСТОВ»
Арендный объект SS05
Г. Дубна, МО, Апартаменты на Дачной
RU
EN
На сайте используются файлы cookie. Продолжая просмотр сайта, вы разрешаете их использование.
Политика конфиденциальности
Понятно